Pintail Landing Map Image

Approved Neighbourhood Structure Plan guiding the future development for a new neighbourhood in the Big Lake Area.

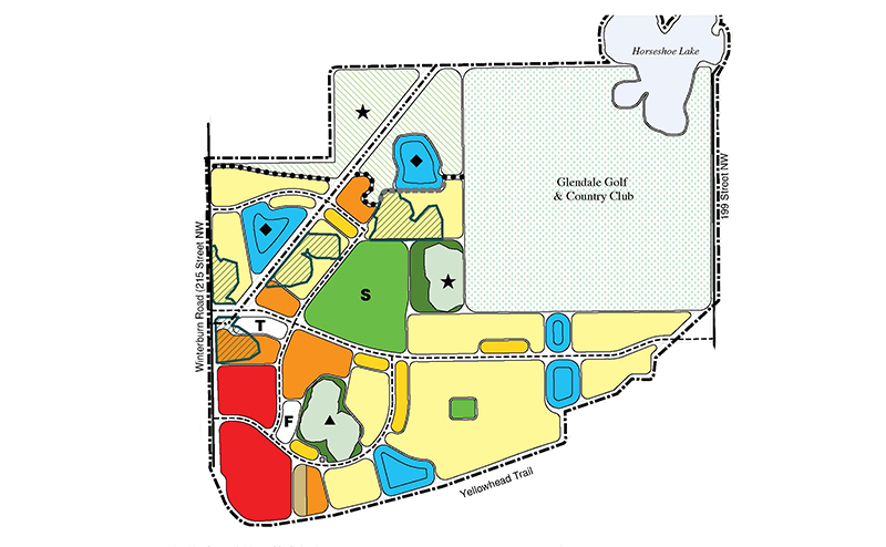
The City of Edmonton has approved a draft neighbourhood structure plan (NSP) for the Pintail Landing Neighbourhood. This neighbourhood is located in northwest Edmonton, north of Yellowhead Trail and west of Anthony Henday Drive.

Neighbourhood Structure Plans describe the general pattern of development for a new residential neighbourhood and guide the next development stages, including zoning, subdivision, infrastructure design and construction.

The approved Pintail Landing NSP outlines:

  • Design vision and development objectives
  • Future land uses, including commercial, institutional and residential
  • Expected population densities
  • Cycling and pedestrian (active modes) network
  • The location of major roads and utilities
  • Space for parks, natural areas, and a school site

The plan will allow for the zoning, subdivision, and future development of the area.

Read the draft Pintail Landing Neighbourhood Structure Plan (12.6MB).